CONCEPTION MOULES






 Moule pour injection de plastique de deux pièces symétriques d'un réseau  dans lequel obsevamos la chose suivante :
  •    Batterie d'Ejection Hydraulique
  •    Pour libérer négatifs au moyen glissiere et patins.
  •    Injection avec Canaux chauds







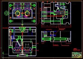
 Moule pour injection de plastique de 1+1 cavités avec mécanismes divers :
  •     Glissiere
  •     Patins
  •     Mouvements Doubles à l'intérieur de glissants et patins pour éliminer        négatifs.






Moule pour injection de plastique de 1+1 cavités avec mécanismes divers :
  •     Ouverture de plat avec quai du gaz pour conduire cales interioresy pour libérer négatifs avant mise en marche de l'expulsion.
  •     Glissiere